Springe zum Hauptinhalt Skip to main navigation Skip to site search
Neubau eines Verwaltungscampus mit Flüssigkristall-Verglasung

Bürobau mit Smartphone-Fassade

Um den nachfolgend einleitenden Satz in diese Objektreportage besser zu verstehen, muss ich vorausschicken, dass sich mein Wohnort unweit von Karlsruhe befindet. Jedenfalls schweift mein Blick beim Befahren der Autobahn A5 in Richtung der nordbadischen Residenzstadt bei der Ausfahrt Nord immer wieder zu diesen beiden weißen Gebäudekuben im Industriegebiet Hagsfeld. Und ich fragte mich stets: Wie, verflixt, schaffen die es, die großzügig verglasten Kuben mit ihren gekurvten Leibungen zu verschatten??? Herabgelassene Jalousien waren nie zu sehen, nur immer wieder diese mehr oder weniger bläulich schimmernde Verglasung, in der letzlich auch das Geheimnis verborgen ist: Es ist die Verglasung selbst, die dank Flüssigkristall-Technologie je nach Einstrahlungsintensität sensorgesteuert von hell- nach dunkelblau changiert, um den Licht- und Wärmeeintrag in die Büros soweit zu reduzieren, dass der Ausblick trotzdem gewahrt bleibt. Wie diese „Smartphone-Fassade“ genau funktioniert, soll an anderer Stelle des Artikels en détail erläutert werden. Es sei hier nur soviel verraten: In Summe zählt die 3-fach verglaste Sonnenschutzverglasung sechs Scheiben und ist knapp 68 mm dick.

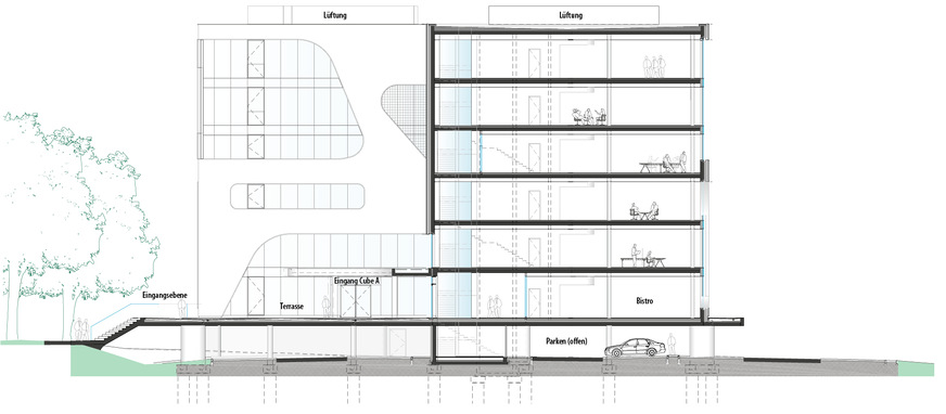
2 Beide Bürotürme stehen auf einem Stahlbeton-Plateau, unter dem die Pkw-Stellplätze für die Mitarbeiter angeordnet sind, Schnitt BB, M 1:500.

Bild: 3deluxe

2 Beide Bürotürme stehen auf einem Stahlbeton-Plateau, unter dem die Pkw-Stellplätze für die Mitarbeiter angeordnet sind, Schnitt BB, M 1:500.
3 Die Grundrissstruktur der beiden Gebäude ist ab dem 1. Obergeschoss baugleich angelegt, jedoch um 180 Grad verdreht, Schnitt M 1:500.

Bild: 3deluxe

3 Die Grundrissstruktur der beiden Gebäude ist ab dem 1. Obergeschoss baugleich angelegt, jedoch um 180 Grad verdreht, Schnitt M 1:500.
4 Beide Bürotürme werden jeweils separat erschlossen, Cube B enthält ein Bistro.Grundriss Erdgeschoss, M 1:500.

Bild: 3deluxe

4 Beide Bürotürme werden jeweils separat erschlossen, Cube B enthält ein Bistro.
Grundriss Erdgeschoss, M 1:500.
5 Je nach Blickwinkel verschmelzen die beiden Kuben zu einem Gebäudeensemble. Im Hintergrund ist die Autobahn A5 nahe der Ausfahrt Karlsruhe zu erkennen.

Bild: Sascha Jahnke

5 Je nach Blickwinkel verschmelzen die beiden Kuben zu einem Gebäudeensemble. Im Hintergrund ist die Autobahn A5 nahe der Ausfahrt Karlsruhe zu erkennen.

Büro-Campus im Null-Energie-Standard

Vermutlich haben die Bauphysiker der Ingenieurgesellschaft Finkenberger + Kollegen zuerst einmal die Augen gerollt, als sie von den in Wiesbaden ansässigen 3deluxe Architekten den Entwurf für den FC-Campus auf den Schreibtisch gelegt bekamen. Klar, die gestalterische Qualität der beiden strahlend weißen Kuben mit vorgehängter Putzträgerfassade definiert sich maßgeblich und beeindruckend aus den unterschiedlich großen Glasflächen mit ihren abgerundeten Leibungen mit eng bis weit gefassten Radien. Andererseits stellte sich ziemlich rasch die schon eingangs gestellte Frage, wie sich um Himmels Willen die Fassade mit herkömmlichen Sonnenschutzsystemen verschatten lässt. Aber diese Herausforderung war nicht die Einzige: Der Bauherr, die FC-Verwaltungs GmbH, wünschte sich für ihren Bürocampus einen Null-Energiehaus-Standard, und bitte schön attraktive Arbeitsplätze auf sechs offen konzipierten Etagen ohne störendes Grundrauschen aus dem Verkehrslärm der in Sichtweite viel befahrenen Autobahn.

Für das angenehme wie möglichst CO₂-neutrale Klima in den als A und B bezeichneten Kuben sorgen moderne Heiz- und Kühldecken, gespeist über Geothermie, die ihre Energie über 24 Sonden in 130 m Tiefe generiert und von der PV-Anlage auf den beiden Flachdächern unterstützt wird. Das klimaneutrale Konzept bezieht auch den Workflow mit ein: das Streben nach dem papierlosen Büro, eine „leichte“ und transparente Möblierung, was überdies den weitgehend unverstellten Blick nach draußen ermöglichte, der nicht nur Autobahnzubringer und Gewerbegebiet zu bieten hat, sondern auch ein kleines schützenswertes Baum-Wiesenbiotop mit Bachlauf.

Über eine eigens vom Bauherr entwickelte App steuern die Mitarbeiter so ziemlich alles im Haus: Sie können ihren Lunch aus der hauseigenen „Foodbar“ auswählen oder sich in der Pause durch die umgebenden Grünanlagen navigieren lassen.

Nachhaltig optimiert in Form und Funktion

Hinter dem Entwurfskonzept stand neben dem Ziel eines möglichst klimaneutralen und nachhaltigen Gebäudes ein konsequentes Corporate Design für ein zukunftsorientiertes Ingenieurbüro an prominenter Stelle - wer auf der A5 bei Karlsruhe die Augen offen hält, kann die beiden Würfel mit ihrer signifikanten Architektur nicht übersehen. Mehr als sechs Geschosse hätten dem baulich optimierten Verhältnis von Außenfläche zu Volumen widersprochen – die beiden gegeneinander verdrehten FC Cubes mit identischem Grundriss stehen auf einer großen aufgestützten Grundplatte aus Stahlbeton, die über dem Erdniveau zu schweben scheint. Darunter parken die Autos der Mitarbeiter, wobei hier die versiegelten Flächen auf Fahrbahn und Fußwege reduziert sind.

Je nach Blickwinkel erscheinen die Bürokuben als einzelne skulptural wirkende Baukörper mit separaten Zugängen oder als ein ineinander verschmolzenes Ensemble mit dem fassadengleichen Antlitz siamesischer Zwillinge. Die stellenweise über mehrere Geschosse reichende Verglasung sorgt für eine üppige Tageslichtversorgung in den Büros, und dort, wo dies nicht nötig ist, schmelzen die Öffnungen in der Fassade zu schmalen Schlitzen zusammen.

6 In den offen gehaltenen Bürozonen dominieren die Farbe Weiß und Holz. Der Teppich besteht aus recycelten Fischernetzen und Plastikflaschen.

Bild: Sascha Jahnke

6 In den offen gehaltenen Bürozonen dominieren die Farbe Weiß und Holz. Der Teppich besteht aus recycelten Fischernetzen und Plastikflaschen.

Verschatten mit Smartphone-Technologie

Bleibt noch das Rätsel um die Verschattung der Verglasung zu lösen, die aufgrund der um die Fassade mäandernden Leibung an keiner Stelle im jalousiegerechten Winkel „aneckt“. Hier kommt nun eine Innovation und Marke der Unternehmensgruppe Merck zum Tragen: die dynamische Flüssigkristall-Verglasung eyrise®.

7 Im Bereich der Nebenzonen besteht die Verschattung aus Streckmetallen – jedoch sind alle Fassadenausschnitte zu den Bürozonen mit der 3-fach Flüssigkristall-Verglasung ausgestattet.

Bilder: Sascha Jahnke

7 Im Bereich der Nebenzonen besteht die Verschattung aus Streckmetallen – jedoch sind alle Fassadenausschnitte zu den Bürozonen mit der 3-fach Flüssigkristall-Verglasung ausgestattet.
8 Die Schemazeichnung zeigt den Aufbau und die Wirkungsweise der Flüssigkristall-Verglasung.

Bild: Merck Window Technologies / 3deluxe

8 Die Schemazeichnung zeigt den Aufbau und die Wirkungsweise der Flüssigkristall-Verglasung.

Die im FC Campus verbaute Variante eyrise® s350 basiert auf der licrivision®-Technologie, die als transparente Flüssigkristallmischung je nach individuellem Bedarf oder Wunsch aus spezifischen Farbmolekülen zusammengesetzt ist. Quasi „eingeklemmt“ zwischen zwei Glasscheiben mit transparenter leitfähiger Schicht reicht eine geringe Spannung aus, dass die Moleküle in der Flüssigkristallzelle ihre Ausrichtung ändern und so die Licht- und Wärmedurchlässigkeit der Verglasung entsprechend regulieren (Abb. 8). Der Umschaltvorgang dauert gerade mal eine Sekunde, wodurch die dynamische Verglasung jederzeit stufenlos zwischen hell und dunkel eingestellt werden kann. Der Vorgang lässt sich entweder per Knopfdruck mittels App oder vollautomatisiert über Sensoren regeln – für das Aktivieren der Flüssigkristalle genügt weniger als 1 W/m².

Im Gegensatz zu elektrochromen Verglasungen, deren Tönung der Keramikmaterialschichten auf einem chemischen Prozess basiert, ebenfalls ausgelöst durch Strom, verändert die Flüssigkristallmischung ihre Struktur physisch, genau wie bei einem LC-Display unserer Smartphones und Tablets. Anders als elektrochrome Gläser ermöglichen Flüssigkristall-Verglasungen eine neutralere (nicht blaue) Transparenz, sie schalten viel schneller und lassen sich stufenlos dimmen. Ein weiterer Grund, der vor allem beim FC-Campus den Ausschlag für die Flüssigkristall-Technologie gab, war deren Anpassbarkeit an nahezu alle Glasgeometrien und Fassadensysteme. Das maximale Scheibenformat ist derzeit noch auf 3,5 × 1,6 m begrenzt.

Mehrfache Einspareffekte

Man stelle sich nun einen heiter-bewölkten Sommertag jenseits der 30 °C mit erfrischender Brise vor, der das Arbeiten hinter einer Glasfassade nur bei heruntergelassener Jalousie erträglich macht. Der Wind jagt die Wolken quer über den Himmel, sie verdunkeln kurz die Sonne und geben sie im nächsten Moment wieder frei. Anstatt ständig die Jalousie hoch- und runterzufahren, bleibt sie irgendwann geschlossen, und man schaltet entnervt das Kunstlicht ein. Eine Flüssigkristall-Verglasung passt sich hingegen sekundengenau den Tageslichtverhältnissen an, was sowohl bei der Klimaanlage als auch der Beleuchtung merklich Energie einspart.

Hinzu kommen Vorteile bei den Wartungs- und Reinigungskosten mangels mechanischer Bauteile. Schließlich spart die in die Verglasung integrierte Verschattung gegenüber einer Doppelverglasung oder konventionellen Verschattungsanlagen mehr Fläche als man zunächst vermutet – was insbesondere in extrem teuren Lagen wie der London City auch monetär zu Buche schlägt. Da kommen schon mal 100 bis 150 m² in einem Gebäude zusammen. Ein jeder rechne sich die gewonnenen respektive entgangenen Mietkosten pro Quadratmeter selbst aus.

Kommt ein Vöglein geflogen …

Ein Thema war beim FC-Campus mit seinen großflächigen Übereck-Verglasungen in naturnaher Umgebung auch der Vogelschlag. Um diesen zu vermeiden, entwickelten die Architekten gemeinsam mit der Schweizer Vogelwarte Sempach ein feines, semitransparentes auf die Verglasung aufgedrucktes Pattern, das die Vögel wahrnehmen, das zugleich aber den Ausblick nach draußen nicht stört. Dieser Sensibilität trägt auch die insektenfreundliche LED-Außenbeleuchtung Rechnung.

9 Die beiden Cubes A und B werden jeweils eigenständig erschlossen. Zwischen den beiden Kuben führt eine Treppe in die darunter liegende Parkebene.

Bild: 9Sekunden

9 Die beiden Cubes A und B werden jeweils eigenständig erschlossen. Zwischen den beiden Kuben führt eine Treppe in die darunter liegende Parkebene.

Bautafel

Projekt: Neubau eines sechsgeschossigen Gebäudeensembles zur ­Büro­nutzung mit Flüssigkristall-Verglasung, www.fc-campus.de

Bauherr: FC-Verwaltungs GmbH, 76275 Ettlingen, www.fc-gruppe.de

Architekten: 3deluxe, 65183 Wiesbaden, www.3deluxe.de

Bauphysik: GN Bauphysik Finkenberger + Kollegen Ingenieur­gesellschaft mbH, 70372 Stuttgart, www.gn-bauphysik.de

Haustechnik: FC-Planung GmbH, 75015 Bretten, www.fc-gruppe.de

Tragwerksplanung: Künstlin Ingenieure, 76187 Karlsruhe, www.kuenstlin-ingenieure.de

Fassadenplanung: planQuadrat Architektur&Consulting, 76275 Ettlingen

Fassadenausführung: Freyler Metallbau GmbH, 79341 Kenzingen, www.freyler.de

Verglasung: eyrise B.V., 5504 DE Veldhoven, Niederlande, www.merckgroup.com, www.eyrise.com

Fotografie: Sascha Jahnke, 3deluxe, Wiesbaden und Nikolay Kazakov,
 76185 Karlsruhe, www.kazakov.de

Bauzeit: 2018 bis 2020

Flächen / BGF Cubes: 2904 m2

Bausumme: 11 Mio. Euro

Tragwerk und Fassade

Stahlbeton-Skelettbau, Aussteifung über Außenwandscheiben der ­Pfosten-Riegel-Fassade, 3-fach Isolierverglasung mit integrierter schaltbarer Flüssigkeitsschicht zwischen zwei Gläsern, außenseitige Vogelschutzbedruckung, umlaufende Stahlblech-Leibungen, vorgehängte Putzträger-Fassade

Jetzt weiterlesen und profitieren.

Mit unserer Future Watt Firmenlizenz top informiert und immer auf dem neuesten Wissenstand in ihrem Fachgebiet.

+ Unbegrenzter Zugang zu allen Future Watt Inhalten
+ Vergünstigte Webinarteilnahme
+ E-Paper Ausgaben
+ Sonderhefte zu speziellen Themen
+ uvm.

Wir haben die passende Lizenz für Ihre Unternehmensgröße!

Mehr erfahren