Auch Maulwürfe brauchen mal Tageslicht – gesagt, getan, oder besser: geplant, gebaut, setzte das Grazer Planungsbüro Leitner um, wonach es dem Schweizer Tunnelbau-Unternehmen Marti war: einem möglichst transparenten Verwaltungsbau in Stahlbetonskelettbauweise, dem Baumaterial seiner Leidenschaft. Zudem sollten die Mitarbeiter, deren Baustellen überwiegend unter Tage zu betreuen und zu beaufsichtigen sind, an der neuen Niederlassung südlich von Graz einen hellen und luftigen Büroarbeitsplatz mit Aussicht genießen können.
Design follows Construction
Der dreigeschossige Komplex mit Tiefgarage folgt in seiner Grundstruktur konsequent dem vorgegebenen Konstruktruktionsraster (Abb. 2), für jedermann quasi mit geschlossenen Augen ablesbar an der nach außen verlegten Tragstruktur aus Sichtbeton-Fertigteilelementen, die mit der inneren thermisch getrennt verbunden sind. Genau an dieser mit Isokörben gelösten Schnittstelle sind die raumhohen Passivhaus-Fensterelemente montiert, die bis auf wenige Ausnahmen die Gefache aus Stahlbetonriegeln- und stützen ausfüllen. Vertikal angeordnete, bewegliche und sonnenstandsgeführte Lamellen aus fein gestanztem Lochblech gewährleisten den erforderlichen Blend- und Sonnenschutz.
Die Farbgebung der Lamellen – mehr anthrazit, weniger gelb – orientiert sich am CI des Firmenlogos, das weithin sichtbar auf den vier Seiten eines auf dem Flachdach aufgesetzten Würfels ablesbar ist. Die klare Formensprache und die nüchterne Kubatur ergeben in Kombination mit dem Grau des Betons und den beiden Firmenfarben eine unaufgeregte und sehr stimmige Architektur (Abb. 4), sogar der gelbe Würfel sitzt genau da, wo er hingehört. Je länger man das Gebäude betrachtet, umso deutlicher wird: Hier wurde nichts dem Zufall überlassen.
 
 Bild: Baumeister Leitner, Graz
Das Fensterelement – ein schlankes Schwergewicht
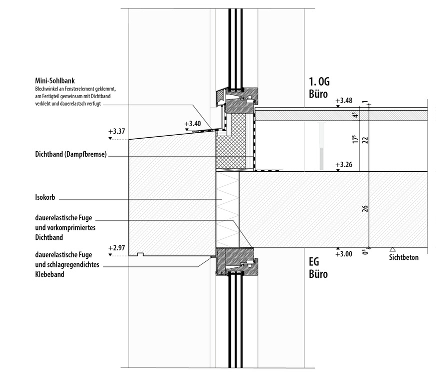
Diese planerische Akribie zieht sich vom Großen bis ins Kleine – von der Konstruktion über die Fassade bis zu den Details und Anschlüssen (Abb. 5, 6). Ganz besondere Aufmerksamkeit wurde den Schnittstellen an der Gebäudehülle geschenkt – an keiner Stelle finden sich Verlegenheitslösungen, jegliche Wärmebrücke hatte man im Blick und damit letztlich auch im Griff.
Die geschosshohen und 2,7 m breiten Holz-Alu-Fensterelemente der Energieeffizienzklasse phA waren eine Vorgabe, der nicht jeder Fensterhersteller gewachsen war (Abb. 7). Zum Zuge kam letzlich das Unternehmen Lorber mit dem Produkt smartwin solar XL (Abb. 8), eine für dieses Objekt entwickelte Speziallösung mit CE-Kennzeichnung und fortan gedacht für übergroße Objektfenster. Bemerkenswert ist hierbei der nur 58 mm schlanke Fensterflügel, dessen Gewicht bis zu 180 kg erreicht. Überzeugend sind auch die energetischen Werte des Fensters: Der Ug-Wert erreicht 0,52 W/(m2K), der Uw-Wert 0,63 W/(m2K) (Bezug: Normgröße).
Millimeterarbeit auch bei der Montage
Bemerkenswert ist aber nicht nur die Fensterkonstruktion an sich, sondern auch die Montage der Elemente. Der Einbau erfolgte bis hoch ins dritte Geschoss ohne Gerüst per Kran (Abb. 10). Wie im Vertikalschnitt (Abb. 5) gut zu erkennen, reichen die Fenster vom Rohfußboden bis unter die Stahlbetondecke und sitzen auf einem vormontierten Schwellenholz auf. Da die geschosshohen Elemente etwas höher waren als die lichte Höhe des Gefachs zwischen den Riegeln der Stahlbeton-Skelettkonstruktion, mussten die XL-Fenster schräg eingehoben werden, um sie an Ort und Stelle zu bringen (Abb. 9). Das erforderte vom Kranführer ein gefühlvolles Händchen beim Bedienen seiner Steuerhebel. Trotzdem gelang es mit nur drei Mann, pro Tag (!) nahezu ein gesamtes Stockwerk oder 200 m² Fensterfläche – ohne Abdichtungsarbeiten – zu montieren.
Jedes Fensterelement ist mit einem Dreh-Kipp-Flügel ausgestattet und somit von den Mitarbeitern bei Bedarf jederzeit öffenbar, wobei die Fenster aber kein Bestandteil des Lüftungskonzeptes sind.
 
 Bild: Baumeister Leitner, Graz
Konventionell und effizient – die Gebäudetechnik
Beheizt wird das Bürogebäude über eine monovalente Wasser/Wasser-Wärmepumpe mit 56,77 kW Leistung und einer Jahresarbeitszahl (JAZ) von 5,25. Ihre Wärmeenergie bezieht sie über einen Ziehbrunnen, über einen Schluckbrunnen strömt das Wasser wieder zurück ins Erdreich. An heißen Sommertagen vermag die Wärmepumpe auch zu kühlen – hierfür, wie auch zum Heizen, wird die massive Betonkonstruktion durch Bauteilaktivierung genutzt.
Für den Strombedarf ist auf dem begrünten Flachdach unterstützend eine PV-Anlage mit 28 kWp Leistung installiert. Eine Lüftungsanlage mit Wärmerückgewinnung sorgt für frische und temperierte Innenraumluft. Unterstützend wirkt in den Sommermonaten die Kippstellung der Fensterflügel, um eine Nachtlüftung zu ermöglichen.
Hinterlüfteter Sonnenschutz
Dank der automatisch betriebenen, sonnenstandsgeführten Lamellen, die übrigens von den Nutzern bei Bedarf übersteuert werden können, bleibt das Klima in den Büroräumen trotz der raumhohen Fensterelemente angenehm. In dem Luftraum zwischen Wärmeschutzverglasung und den perforierten Lamellen weht dank der 3 bis 4 cm breiten, umlaufenden Fuge stets ein Lüftchen, wodurch hier keine Stauwärme auftreten kann. Ungeachtet dessen machen sich bei den Gefachen mit anthrazitfarbenen und jenen mit den gelben Lamellen im Zwischenraum gewisse Temperaturunterschiede bemerkbar, die sich aber nach Aussagen des Bauherren nicht negativ auf das Raumklima auswirken.
Auch wenn bei diesem Projekt alles gut ging, sollten Energieberater das Risiko einer Überhitzung zwischen feststehendem Sonnenschutz und Verglasung generell im Auge behalten – die Problematik der Farbgebung sowie die Notwendigkeit einer Belüftung solcher Zwischenräume sind nicht zu unterschätzen. Absolute Sicherheit verleiht in solchen Fällen nur eine Simulation.
 
 Bild: Jade Hubmann, Graz
unternehmens Marti.
 
 Bild: Baumeister Leitner, Graz
 
 Bild: Baumeister Leitner, Graz
 
 Bild: Jade Hubmann, Graz
 
 Bild: smartwin
 
 Bild: Lorber-Haus
 
 Bild: Lorber-Haus
Bautafel
Projekt: Neubau eines Bürogebäudes in Graz-Straßgang (A)
Bauherrschaft: Marti GmbH, A-8054 Graz-Straßgang, www.marti.at
Architekt: BM Leitner Planung und Bauaufsicht GmbH, A-8010 Graz, 
www.baumeister-leitner.at
Projektleitung: BM Arch. DI Reinhard Hubmann
Tragwerksplanung: BM DI Rico Schön, 
A-9551 Bodensdorf am Ossiacher See
Rohbau: Ortisbaugesellschaft mbH, A-8130 Frohnleiten, 
www.ortisbau.at
Engineering / Grundwasser: Geologie & Grundwasser GmbH, A-8055 Graz, www.geo-gmbh.at
TGA-Planung: TBH Ingenieur GmbH, A-8020 Graz, www.tbh.at
Fassade / Fensterbau: Lorber Fensterbau, 
A-8081 Heiligenkreuz a/W, www.lorber-fenster.at
Planung: 2017
Bauzeit: Juli 2018 bis Juni 2019
Nutzfläche: 1800 m2 / 5 Büroeinheiten
Brutto-Volumen: 8062,95 m3
Baukosten (KG 300 + 400): 1.308.431,43 Euro
Gebäude- und Energiekennwerte, Heizkonzept
Primärenergiebedarf Qp: 133,45 kWh/(m2a)
Endenergiebedarf Qe: 83,84 kWh/(m2a)
mittlerer U-Wert: 0,392 W/(m2K)
Heizenergiebedarf: 24,75 kWh/(m2a)
Kohlendioxid-Emissionen: 19,28 kg/(m2a)
Kompaktheit (A/V): 0,37 1/m
Gebäude-Hüllfläche: 2959,83 m2
Wärmeerzeuger: monovalente Wasser/Wasser-Wärmepumpe (56,77 kW, JAZ 5,25) mit Zieh- und Schluckbrunnen, Heizen und Kühlen über Bauteilaktivierung
WW-Speicher: direkt elektrisch beheizter Warmwasserspeicher mit E-Patrone, 25 kWp-PV-Anlage auf dem Flachdach
 
     
     
     
     
     
     
    