Springe zum Hauptinhalt Skip to main navigation Skip to site search
Energetische Sanierung einer Wohnanlage von 1972

Der Planer, die WEG und das Mehr

Sie war nicht nur sichtlich in die Jahre gekommen, sondern bereits in gefährlich marodem Zustand: Dabei hatte die Wohnanlage aus 13 Einzelgebäuden im Münchner Westen gerade mal 50 Lenze auf dem Buckel. Im gleichen Jahr, als 1972 nur ein paar Kilometer weiter östlich die Olympioniken um Medaillen kämpften, wuchsen an der Mooswiesenstraße die vier- bis sechsgeschossigen Gebäude in teilvorgefertigter Bauweise in raschem Tempo in die Höhe.

Es war die Zeit, in der man sich nicht immer darüber im Klaren war, dass es nicht nur darauf ankommt, was man aus Beton macht, sondern auch auf das „Wie“. Bereits wenige Jahre nach dem Bezug der Wohnungen mussten die Fassaden aufgrund bauphysikalischer Probleme außenseitig mit 40 Millimeter Mineralwolle gedämmt werden. Die Optik des Sichtbeton übernahm fortan eine hinterlüftete Fassadenbekleidung aus asbesthaltigen Faserzementplatten, um Dämmplatten und Beton vor Witterungseinflüssen zu schützen.

Doch auch an der Holz-Unterkonstruktion der hinterlüfteten Bekleidung nagte irgendwann der Zahn der Zeit, beziehungsweise es ergaben sich partielle Feuchteschäden, die dazu führten, dass die Holzunterkonstruktion verfaulte und ab 2018 Sicherungsmaßnahmen gegen das Herabfallen der Platten getroffen werden mussten. Die Wohnungseigentümergemeinschaft (WEG) sah sich gezwungen, schleunigst eine Generalsanierung der Fassaden vorzunehmen.

Was die Förderung so alles zutage fördert

Zum Zeitpunkt der angestrebten Sanierung war das Gebäudeenergiegesetz bestenfalls kühne Zukunftsvision – es galt noch die Energieeinsparverordnung. Demzufolge hätte die neue opake Fassade mindestens einen U-Wert von 0,28 W/(m²K) einhalten müssen, was mit 16 Zentimeter Mineralwolldämmung (WLG 032) problemlos umzusetzen gewesen wäre. Für diese „Reparaturmaßnahme“ wären jedoch keinerlei Fördermittel zu erwarten gewesen.

Womit wir an einem Punkt sind, an dem sich der Vorteil einer professionellen und durchdachten Energieberatung auszuzahlen beginnt, weil sich zwangsläufig die Frage stellt, ob im Zuge der Fassadensanierung nicht auch die Fenster getauscht und vielleicht sogar die Heizung erneuert werden sollten. Gemeinsam mit dem beauftragten Planungsteam von RSV Architekten und mit Blick auf die möglichen Fördermittel entschied die WEG, eine Gesamtsanierung zum Effizienzhaus 55 (EH 55) durchzuführen, weil aufgrund der motivierenden KfW-Programme und den Zuschüssen der Stadt München 38 Prozent des kalkulierten Budgets über die Förderung bezahlt wurden.

Insgesamt gesehen war die Sanierung zum EH 55 mit neuen Fenstern, aufgewerteten Balkonen, Kellerdeckendämmung und komplett neuer Anlagentechnik günstiger als nur die opaken Fassaden anzufassen. Bei den 2010 sanierten Flachdächern zeigte sich kein Handlungsbedarf, jedoch wurden die Flächen für die Installation einer PV-Anlage genutzt.

Fenstertausch: Einbau vor Ausbau

In einem ersten Schritt wurde die 1980 aufgebrachte hinterlüftete Fassade komplett entfernt und die ursprüngliche Sichtbetonkonstruktion freigelegt. Danach erfolgte der Austausch der Holz-Alu-Fenster, wobei die neuen Fenster auf die Rohbaufassade aufgesetzt wurden. Anschließend wurden die alten Fenster ersetzt und in einem Zug eine vorgefertigte innere Laibungsbekleidung aufgebracht. Dieses Vorgehen reduzierte die Belästigung der Bewohner auf ein Mindestmaß. Im Zuge des Austauschs wurden alle Fenster mit elektrischen Rollläden ausgestattet, was aufgrund ihrer neuen Lage vor der Betonfassade unproblematisch möglich war. Die nutzerunabhängige Feuchteschutzlüftung erfolgt in Verbindung mit der Abluft der innenliegenden Bäder durch feuchtegesteuerte, in den Fensterrahmen integrierte Abluftelemente.

Für den Neuaufbau der Fassade kam nach der Erfahrung mit den asbesthaltigen Platten nur eine sortenrein ablösbare Konstruktion in Frage, die zudem nicht als Sondermüll zu entsorgen war. Auch ein Downcycling war keine Option, weshalb ein klassisches Wärmedämm-Verbundsystem kein Thema war.

Vorgehängtes Leichtgewicht bildet die neue Wetterhaut

So fiel die Entscheidung wieder zugunsten einer vorgehängte hinterlüftete Fassade (VHF) – mit der Vorgabe, dass möglichst alle Teile nach einem Rückbau wieder eingebaut werden können. Die Wahl fiel schließlich auf hinterlüftete Trapezbleche aus Aluminium mit einem 30 Zentimeter dicken Dämmpaket in zwei Lagen – 20 und zehn Zentimeter – aus Mineralwolle. Der ökologische Fußabdruck der für die Sanierung verwendeten Baumaterialien beträgt 2,05 Kilogramm pro Quadratmeter Nutzungsfläche. Anders als Holz, das bei einem Rückbau nur downgecycelt werden kann, schneiden die flexibel fügbaren Blechbauteile im Sinne der Kreislaufwirtschaft besser ab.

Für das im Wohnungsbau eher unübliche Fassadenmaterial Aluminium sprachen neben seiner Demontierbarkeit auch die Langlebigkeit, vor allem aber das mit 3,8 Kilogramm pro Quadratmeter geringe Gewicht der 0,9 Millimeter dünnen Bleche. Denn: Die bereits an der Betontragwand angehängten Fertigteile waren in ihrer Lastaufnahme beschränkt, weshalb das zulässige Gewicht der vorgehängten Wetterschutzkonstruktion begrenzt war. Sämtliche Lasten der VHF konnten nur über die Geschossdecken abgeleitet werden, und das ebenfalls nur begrenzt.

Auch stand auch die Überlegung im Raum, die VHF seriell vorzufertigen – entsprechende Angebote lagen vor, wurden aber wegen des logistischen Aufwandes, vor allem aber wegen der höheren Kosten und aufgrund der strukturellen Gegebenheiten des Bestandes nicht weiterverfolgt.

Dass am Ende Trapez- und kein Wellblech den Zuschlag bekam, liegt in der Fassadenstatik begründet. Der Abstand der Tragelemente sowie die Ausbilddung der darauf befestigten horizontalen Profile zur Aufnahme des Trapezbleches folgen der Maxime, mit einem möglichst geringen Materialaufwand beziehungsweise Gewicht die neue Hülle umzusetzen.

Von Geschossdecke zu Geschossdecke spannt vertikal ein auf die spezifischen Anforderungen konfiguriertes, stranggepresstes T-Rohrprofil mit einer Spannweite von 2,625 Metern. Darauf folgen horizontale Tragprofile, die den Befestigungsuntergrund für das Trapezblech bilden. Das Ergebnis ist ein witterungsbeständiges, komplett rückbaubares Fassaden-Leichtgewicht mit absoluter Reduktion auch bei den Halterungen und ­Bohrungen.

Form follows details

Sämtliche nicht tragenden Balkonelemente wurden ausgetauscht und durch neue Elemente mit einem Uw-Wert von 0,7 (W/m²K) ersetzt, um die Wärmebrücken des konstruktiv vorgegebenen Anschlusses an den Baukörper zu reduzieren. Erreicht wurde dieser Wert, indem die geschlossenen Brüstungen mit 40 Millimeter schlanken Vakuum-Isolations-Paneelen versehen wurden.

Die präzise konstruktive Trennung von Balkonen und opaker Fassade erlaubte es, den Bauablauf zu optimieren, weil der Austausch der Balkonfassaden unabhängig von der Sanierung der anderen Fassaden erfolgen konnte. Die konsequente Umsetzung dieses Prinzipes wirkte sich auch auf die Architektur der Gebäude nach der Sanierung aus.

Grundwasserwärmepumpe ersetzt Ölkessel

Die bisher mit Öl betriebene Nahwärmeversorgung wurde durch eine Grundwasser-Wärmepumpe mit einem Gas-Brennwertkessel als Back-Up für Notfälle ersetzt. Die Wärmeverteilung wurde, wo immer es möglich war, gedämmt. Das bereits vorhandene Konzept der Nahwärmeversorgung ist in diesem Fall besonders effizient, weil schon beim ursprünglichen Anlagenkonzept die Wärmeerzeugung für Warmwasser dezentral über Durchlauferhitzer in den einzelnen Wohnungen erfolgte.

Vor der Sanierung lag der Endenergiebedarf für Heizen bei rund 900.000 Kilowattstunden im Jahr. Aus der fossilen Verbrennung von rund 90.000 Liter Öl resultierte ein CO2-Ausstoß von 267.000 Kilogramm im Jahr. Mit dem jetzigen Wärmeschutz an der Gebäudehülle reduziert sich der Endenergiebedarf für die Gebäudeheizung um ungefähr 600.000 Kilowattstunden pro Jahr, sodass die neue Heizanlage nur noch etwa 290.000 Kilowattstunden Endenergie abdecken muss. Dies geschieht weitgehend regenerativ:

Bei einem Wirkungsgrad der Wärmepumpe von COP 4 – mit einer Kilowattstunde Strom werden vier Kilowattstunden Wärme aus dem Grundwasser gewonnen – reduziert sich der Strombedarf auf rund 75.000 Kilowattstunden, das heißt rund 75 Prozent der Energie wird regenerativ gedeckt. Der CO₂-Ausstoß konnte somit um 231.000 auf etwa 36.000 Kilogramm im Jahr gesenkt werden. Außerdem erzeugt die insgesamt 680 Quadratmeter umfassende PV-Anlage auf den bereits 2010 sanierten Flachdächern etwa 100.000 Kilowattstunden Strom pro Jahr. Davon werden rund 30 Prozent direkt genutzt und 70 Prozent ins Netz eingespeist.

Derzeit liegen die Stromkosten mit 0,2 Euro pro Kilowattstunde noch doppelt so hoch wie mit Öl. Diese Differenz wird aber durch die steigende CO₂-Abgabe auf fossile Brennstoffe künftig mehr und mehr dahinschmelzen. Ungeachtet dieser Differenz ist die Wärmeerzeugung – bezogen auf die Endenergie je Kilowattstunde – auch durch die Nutzung regenerativer Energie deutlich günstiger als vor der Sanierung (Grundwasser).

Eine gute Planung bei der Bauphysik zahlt sich aus

Eine sorgfältige bauphysikalische Bestandsaufnahme und entsprechende darauf aufbauende Zielsetzungen sind wesentliche Grundlagen einer nachhaltigen energieeffizienten Sanierung. Dementsprechend penibel wurden die baukonstruktiven Schwachstellen im Rahmen der Bestandsaufnahme mit Thermographie und Blower-Door-Messungen erfasst. Besonderes Augenmerk fiel auf die energetische Qualität der Fenster (Ug-Wert), die mittels Laser ermittelt wurde, um festzustellen, welche zwischenzeitlich erneuert wurden beziehungsweise um herausfinden und dokumentieren zu können, bei welchen ein Austausch am dringlichsten ist.

Die energetische Sanierung selbst wurde immer synchron begleitet durch Wärmebrückensimulationen, um möglichst wärmebrückenfreie Anschlussdetails entwickeln zu können. Dank dieser Vorgehensweise betrug der individuell ermittelte Wärmebrückenzuschlag lediglich 0,02 bis 0,03 W/(m²K).

Ökonomische Benefits: Förderung und Verbrauch

Bei jeder energetischen Sanierung überschneiden sich die hierfür anfallenden Kosten mit ohnehin erforderlichen Instandhaltungskosten. Diese lagen im vorliegenden Fall wegen der schadhaften Unterkonstruktion besonders hoch. Aufgrund der Förderung war es aber insgesamt günstiger, die Gesamtmaßnahme im hohen Standard auszuführen anstatt eine nicht geförderte Reparatur der opaken Fassade zu forcieren.

Im Einzelnen profitierte die WEG von folgenden Fördermitteln:

  • KfW 151: 2.400.000 Euro
  • Bafa: 520.000 Euro
  • Stadt München: 980.000 Euro
  • Die gesamte Förderung für alle Gebäude addiert sich demnach auf 3,9 Millionen Euro. Hinzu kommt im Rahmen des Programmes KfW 151 die Zinsvergünstigung von zwei Prozent für 3,6 Millionen Euro über zehn Jahre, die sich auf insgesamt etwa 465.000 Euro beläuft (im Mittel 46.500 Euro/Jahr). Die Entlastung beträgt somit fünf Euro je Quadratmeter beheizter Wohnfläche. Nach Abzug aller Förderungen verbleibt für die WEG ein frei zu finanzierender Eigenanteil in Höhe von 10.350.000 Euro. Wird diese Summe mit 3,5 Prozent über eine Laufzeit von 20 Jahren finanziert, ergibt sich eine Belastung pro Quadratmeter Wohnfläche von rund 80 Euro im Jahr.

    Auf der anderen Seite reduzieren sich die Betriebskosten für die Beheizung infolge der baulichen und anlagentechnischen Sanierung. Anstatt 80.000 Euro für das Befüllen des Öltanks inklusive CO2-Abgabe und Betriebsstrom für den Kessel fallen durch den geringeren Wärmebedarf und die Umstellung der Wärmeerzeugung auf eine Grundwasser-Wärmepumpe mit Gas-Spitzenlastkessel nur noch 16.000 Euro pro Jahr an. Pro Quadratmeter beheizter Wohnfläche führt das zu einer mittleren Entlastung in Höhe von etwa 6,90 Euro im Jahr.

    Fazit

    Eine energetische Sanierung ist immer sinnvoll, wenn sowieso eine Instandhaltungsmaßnahme ansteht – egal, ob bei Hülle oder Anlagentechnik, insbesondere bei beidem. Im vorliegenden Fall war die notwendige Fassadensanierung der Auslöser, dass sich die WEG zusammen mit den Architekten über ein energetisches Gesamtkonzept gemacht hat. Nicht zuletzt die hohen Fördermittel führten dazu, dass die WEG sich entschieden hat, die Maßnahmen nicht schrittweise, sondern in einem Zuge durchzuführen. Ökonomisch gesehen war in diesem Fall das „Mehr“ von absolutem Vorteil – für Mieter bei den Betriebskosten, für die Eigentümer durch Wertsteigerung.

    1 Die 13 Gebäude der Wohnanlage umschließen den begrünten Innenhof wie eine Wagenburg – versorgt von einem Nahwärmenetz.

    Bild: RSV Architekten

    1 Die 13 Gebäude der Wohnanlage umschließen den begrünten Innenhof wie eine Wagenburg – versorgt von einem Nahwärmenetz.
    2 Die gesamte Wohnanlage besteht im Prinzip aus zwei Wohnungstypen, jeweils in kürzerer und längerer Variante sowie mit unterschiedlichen Geschosszahlen von vier und sechs Etagen.

    Bild: RSV Architekten

    2 Die gesamte Wohnanlage besteht im Prinzip aus zwei Wohnungstypen, jeweils in kürzerer und längerer Variante sowie mit unterschiedlichen Geschosszahlen von vier und sechs Etagen.
    3 Die Architektur der 13 Wohngebäude resultiert nicht nur aus der Materialität der vorgehängten hinterlüfteten Fassade, sondern auch aus dem konstruktiv-logistischen Sanierungskonzept der Wohnanlage.

    Bild: RSV Architekten

    3 Die Architektur der 13 Wohngebäude resultiert nicht nur aus der Materialität der vorgehängten hinterlüfteten Fassade, sondern auch aus dem konstruktiv-logistischen Sanierungskonzept der Wohnanlage.

    Bild: RSV Architekten

    4 Grau statt Orange, gedämmt statt verschimmelt, demontierbar statt asbesthaltig – die Fassaden­sanierung verbessert den Wohnwert und Komfort nachhaltig.

    Bild: RSV Architekten

    4 Grau statt Orange, gedämmt statt verschimmelt, demontierbar statt asbesthaltig – die Fassaden­sanierung verbessert den Wohnwert und Komfort nachhaltig.

    Bild: RSV Architekten

    5 Freundlich und witterungsgeschützt: Die neue Eingangssituation der Wohnanlage an der Mooswiesenstraße wirkt einladender als zuvor.

    Bild: RSV Architekten

    5 Freundlich und witterungsgeschützt: Die neue Eingangssituation der Wohnanlage an der Mooswiesenstraße wirkt einladender als zuvor.
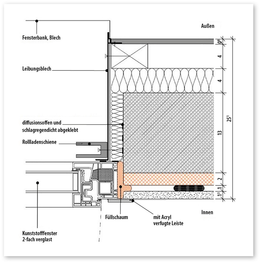
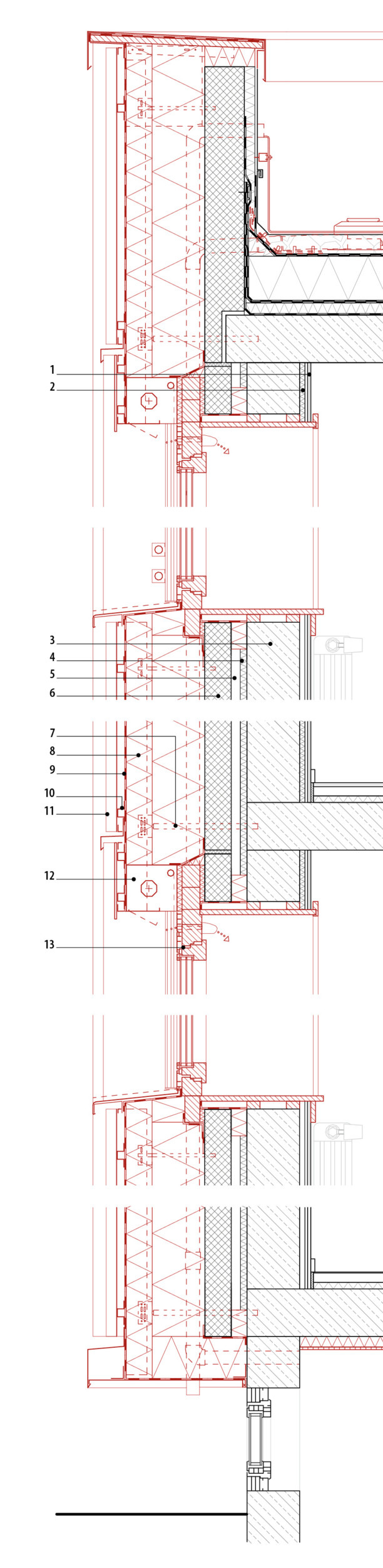
    6­ Detail des Altfenster-Anschlusses: Die neuen Fenster wurden vor deren Demontage außenseitig vor die Betontragwand montiert.

    Bild: RSV Architekten

    6­ Detail des Altfenster-Anschlusses: Die neuen Fenster wurden vor deren Demontage außenseitig vor die Betontragwand montiert.

    Bild: RSV Architekten

    Wandaufbau tragend (Stirnseite):
    1 Trockenputz 22,5 mm
    2 Wärmedämmung 20 mm (Bestand)
    3 Stahlbeton 200 mm (Bestand)
    4 Wärmedämmung 25 mm (Bestand)
    5 Hinterlüftung (Bestand)
    6 Fertigteil Beton 100 mm (Bestand)
    7 Wärmedämmung Mineralwolle WLG 032, nicht brennbar A1, 200 mm (Schöck Isolink 200 mm)
    8 Wärmedämmung Mineralwolle WLG 032, nicht brennbar A1, 100 mm/Aufnahme Adapter mit Kasten T-Profil
    9 Windsperre diffusionsoffen, Anschluss an bestehende Windsperre
    10 Hutprofil Aluminium 30 mm
    11 Trapezprofil Aluminium, 40-100, ­pulver­beschichtet
    Fensteraufbau:
    12 elektrischer Alu-Vorbaurolladen mit
    integrierten Insektenschutzgitter
    13 Aluminium-Holz-Fenster, Aluminium Oberfläche RAL 9016, Holzrahmen Oberfläche Fichte RAL 9010 passiver Fensterlüfter Aereco ZFH-V 5-35, 3-fach Wärmeschutz-Isolierglasscheibe
    bauphysikalische Kennwerte:
    Wandaufbau tragend
    UBestand = 1,16 W/(m²K)
    Uneu, saniert = 0,1 W/(m²K)
    Fenster
    UBestand = 1,6 W/(m²K)
    UW, neu = 0,75 W/(m²K)
    Ug = 0,5 W/(m²K)
    TL = 74 %
    g = 53 %
    Scheibenaufbau 4/18/4/18/4
    8­ Die präzise konstruktive Trennung von Fassade und Balkonen ermöglichte einen optimierten Bauablauf. So konnte der Austausch der Balkonfassaden unabhängig von der Sanierung der anderen Fassaden erfolgen.

    Bild: RSV Architekten

    8­ Die präzise konstruktive Trennung von Fassade und Balkonen ermöglichte einen optimierten Bauablauf. So konnte der Austausch der Balkonfassaden unabhängig von der Sanierung der anderen Fassaden erfolgen.
    9 Sämtliche nicht tragenden Balkonelemente wurden ausgetauscht und durch neue Elemente mit einem Uw-Wert von 0,70 W/m²K ersetzt.

    Bild: RSV Architekten

    9 Sämtliche nicht tragenden Balkonelemente wurden ausgetauscht und durch neue Elemente mit einem Uw-Wert von 0,70 W/m²K ersetzt.

    Bautafel

    Bauherr: Wohnungseigentümergemeinschaft (WEG)/Hausgrund GmbH, 80993 München, www.hausgrund-muenchen.de

    Planung und energetischer Nachweis: RSV Architekten ­Partnerschaft mbB, 82194 Gröbenzell, www.rsv-architekten.de

    Tragwerksplanung: Dr. Siebert und Partner, 81677 München, www.ing.siebert.de

    ELT-Planung: Paul und Michael Riemhofer, 80992 München, www.ib-riemhofer.de

    HLS-Planung: Scheel Ingenieure GmbH, 86316 Friedberg, www.scheel-ingenieure.de

    Brandschutz: Bauart – Beratende Ingenieure, 81925 München, www.bauart-ingenieure.de

    Landschaftsarchitekt: Stadt-Raum-Planung, 81245 München, www.stadt-raum-planung.de

    Sigeko: Markus Behr, Architekt, 82223 Eichenau, info@m-behr

    Gebäudekennwerte Gesamtanlage

    Baujahr: 1972/1980 (Sanierung)

    Sanierung und Erweiterung: 2020–2024

    Anzahl Nutzeinheiten: 138

    Anzahl Bewohner: 312

    wärmeübertragende Umfassungsfläche A: 15.990 m²

    beheiztes Bauwerksvolumen Ve: 34.700 m³

    Innentemperatur: 21 °C

    interne Wärmequellen: 3,8 W/m²

    A/Ve-Verhältnis: 0,32 m-1

    Gebäudenutzfläche AN: 11.100 m²

    Nachtabsenkung: ja (6 Stunden)

    Ergebnis Blower-Door-Test: 1,4 h-1

    Wärmebrückenfaktor: 0,02–0,03 W/(m²K)

    Jahres-Primärenergiebedarf QIIP: 29,8 kWh/(m²a)

    Anlagenaufwandskennzahl eP: 0,53

    spezifischer Transmissionswärmeverlust HIT: 0,30-0,35 W/(m²K)

    Jahres-Endenergiebedarf gesamt Qh,f: 420.000 kWh/a

    Heizwärme (Hilfsenergie) Qh,f (Strom): 75.000 kWh/a

    regenerative Energie Qh,f: 215.000 kWh/a

    Trinkwassererwärmung Qw,f: 125.000 kWh/a

    Lüftung (Ventilator) Qrv,f: 5.000 kWh/a

    Haustechnik / Heizanlage

    Heizsystem: Grundwasser-Wärmepumpe mit Förder- und Schluckbrunnen

    Trinkwassererwärmung: Dezentrale elektrische Durchlauferhitzer(Bestand)

    Stromgewinnung: 680 m² Photovoltaik-Anlage (Contracting)

    Regenwassernutzung: Versickerung

    Gebäudelüftung: nutzerunabhängige Feuchteschutzlüftung

    Gebäudeautomation: keine

    GEB Dossier

    Grundlegende Informationen zum Thema finden Sie auch in unserem Dossier Gebäudekonzepte mit Beiträgen und News aus dem GEB:

    www.geb-info.de/-gebaeudekonzepte

    Jetzt weiterlesen und profitieren.

    Mit unserer Future Watt Firmenlizenz top informiert und immer auf dem neuesten Wissenstand in ihrem Fachgebiet.

    + Unbegrenzter Zugang zu allen Future Watt Inhalten
    + Vergünstigte Webinarteilnahme
    + E-Paper Ausgaben
    + Sonderhefte zu speziellen Themen
    + uvm.

    Wir haben die passende Lizenz für Ihre Unternehmensgröße!

    Mehr erfahren