Springe zum Hauptinhalt Skip to main navigation Skip to site search
Betonhaus in Neu-Ulm

Ohne Schnickschnack

Welche Wohnungsbaugesellschaft ist nicht bestrebt, möglichst kostengünstig und somit für die Mieter bezahlbaren Wohnraum zu schaffen? Und der, bitteschön, äußerst geringe Instandhaltungskosten für Hülle und Technik bedingt. Ach ja, energetisch maximal effizient wäre natürlich auch noch gut, um einerseits dem Klimaschutz gerecht zu werden, andererseits aber auch um die Nebenkosten für die Mieter in Grenzen zu halten.

Was irgendwie klingt wie eine eierlegende Wollmichsau, haben die Münchner Architekten Fink+Jocher gemeinsam mit dem Büro Transsolar Klima Engineering für die NUWOG Wohnungsgesellschaft der Stadt Neu-Ulm umgesetzt. Herausgekommen ist ein massiver und äußert kompakter Neubau in Betonbauweise mit systematischer Tragstruktur und vorgefertigten Tragwänden und Decken. Auf einen Keller wurde aus Kostengründen verzichtet.

Abgerechnet wurden am Schluss 6,88 Mio. Euro für das Gebäude mit allem Drum und Dran (KG 100-700), inklusive Außenanlagen, Ausstattung, Baunebenkosten, Bauwerk, Erschließung, Gebäudetechnik und Grundstück. Geteilt durch die 31 geförderten Wohnungen, die sich auf fünf Etagen plus Dachgeschoss mit Dachgarten verteilen, macht das summa summarum 221.935,48 Euro pro Stück Wohnung. Die aber unterschiedlich groß sind (21 × 2-Zi.-Whg. á 55,75 m², 5 × 3-Zi.-Whg. á 75,41 m² und 5 × 4-Zi.-Whg. á 96,19 m²), weshalb sich als Teiler besser die Gesamt-Netto-Wohnfläche (2.028,54 m²) eignet, umgelegt also 3.391,60 Euro pro Quadratmeter. Rechnet man „nur“ mit den üblichen KG 300+400 und teilt die hierfür anfallenden 4,62 Mio. Euro durch die Netto-Wohnfläche reduzieren sich die „reinen Baukosten“ auf 2.277,38 Euro/m².

Kosteneinsparung durch Vorfertigung und Verzicht

Nun kann man durchaus der Auffassung sein, dass Baukosten in dieser Höhe nicht zwingend rekordverdächtig niedrig sind, aber man sollte dabei nicht vergessen, dass es sich bei dem Neu-Ulmer Betonhaus um ein Pilotprojekt mit Ersterfahrungen für Planer und Ausführende gleichermaßen handelt.

Die NUWOG als Bauherrin verfolgte nämlich die Strategie, für ihr Neubauprojekt einen möglichst hohen Förderanteil zu erzielen und nutzte die Chance, an dem Modellvorhaben „effizient bauen – leistbar wohnen“ des Bayerischen Staatsministeriums für Wohnen, Bau und Verkehr teilzunehmen. Das Ziel dieses Programms ist ganz klar: Bezahlbaren Wohnraum mit „zeitgemäßen Wohnformen und Bauweisen“ zu entwickeln, indem man die verfügbaren Bauflächen optimal ausnutzt und trotzdem „höchstmögliche Wohn-, Gebrauchs- und Architekturqualität umsetzt“.

Was sich in der Theorie gut anhört, zeigt hingegen Tücke im Detail: Die Planung des Gebäudes in vorgefertigter Stahlbeton-Sandwichbauweise erforderte mehrere Entwurfsvarianten und eine systemoffene Ausschreibungsmethodik, um herstellerseitige Optimierungspotenziale für Standardisierungsprozesse zu nutzen und so die Baukosten zu verschlanken.

Kostensparende Effekte ergaben sich zudem aus dem Verzicht auf einen Keller und die offene Erschließung über Laubengänge mit außenliegenden Treppenläufen. Die nötigen Stauräume sind in die Wohnungen integriert, wofür die Bewohner quasi sechs Quadratmeter mietfrei erhalten. Wer kein Jäger und Sammler ist, kann den fensterlosen Abstellraum in der Mitte der Wohnungen natürlich auch anderweitig nutzen, beispielsweise als Mini-Arbeitsplatz, Hobby- und Bastelecke oder als Sauna. Überhaupt bieten die Wohnungen dank Schiebetüren anstatt fester Trennwand gewisse kreative Freiräume für die Art des Wohnens, die insbesondere bei den schmalen 2-Zimmer-Wohnungen sprichwörtlich den Horizont erweitern.

Wie durchdacht die Struktur des Gebäudes ist, zeigt sich nicht nur in den Grundrissen, sondern auch in der Vertikalen. Die exakt übereinander gestapelten und auf drei Größen reduzierten Wohnkuben mit jeweils baugleichen Bädern erlauben Leitungsstränge ohne irgendwelche Winkelzüge. Auch dem Ausbau in Trockenbauweise kamen an keiner Stelle schräge Extrawürste in die Quere.

Die auskragenden Stahlbetonplatten an Laubengang und der gegenüberliegenden Balkonseite wirken als feststehender Sonnenschutz und ergänzen die farbneutrale, aber selektive Beschichtung auf den Verglasungen. Die Ergebnisse der Simulation zeigten, dass mit dieser Kombination ein weiterer beweglicher Sonnenschutz nicht erforderlich ist, um ganzjährig komfortable Raumtemperaturen zu gewährleisten. Selbst bei anhaltenden Hitzeperioden reicht die in allen Wohnungen mögliche natürliche Querlüftung aus, die Nachtkühle in den Betondecken zu speichern und so das Aufschaukeln der Temperaturen über den Tag zu dämpfen.

Lowtech bei der TGA ohne Einbußen beim Komfort

Dank Fernwärmeanschluss waren außer einer Übergabestation keinerlei technisch aufwendige Installationen vorzusehen. Schmale und fast raumhohe Plattenheizkörper in Fensternähe geben die Wärme thermostatgeregelt an die Räume ab und erwärmen die über Außenluft-Nachströmelemente zugeführte Frischluft. Auf die im Estrich geführten Rücklaufleitungen entfällt etwa ein Viertel der Wärmeabgabe an die Räume – per angenehmer Strahlungsheizung.

Die kontinuierliche Entlüftung der Badbereiche durch ein auf dem Dach installiertes Zentralgerät erzeugt in den Wohnungen einen konstanten leichten Unterdruck, der die Frischluftversorgung auf einfachste Weise sicherstellt und optimale Luftqualität und thermischen Komfort bei minimalen Lüftungswärmeverlusten im Winter gewährleistet.

Eine integrierte Rückschlagklappe in den Zuluftelementen verhindert die nicht gewünschte Umkehrung der Strömungsrichtung bei ungünstigen Windverhältnissen. Die Erwärmung der nachströmenden Frischluft macht das System zugluftfrei und komfortabel bei minimalem Investitionsaufwand und Hilfsstrombedarf für die Lüftung.

Somit kommt das Gebäude ganz ohne mechanische Be- und Entlüftung mit Wärmerückgewinnung aus. Was aus Sicht der Planer aufgrund der primärenergetisch optimierten Fernwärmeversorgung (PEF: 0,8) als energetisch sinnvoll zu bewerten ist, weil der eingesparte Lüfterstrom den leicht erhöhten Wärmebedarf durch den Verzicht auf die Wärmerückgewinnung primärenergetisch mehr als kompensiert.

Ein weiterer Vorteil: Es ist keine XXL-Technikzentrale mit aufwendig gedämmten Leitungskanälen vonnöten, sondern die wenigen Installationen verteilen sich auf die einzelnen Wohnungen, vorwiegend im Fensterbereich an der Balkonfassade (Plattenheizkörper, Außenluft-Nachströmelemente). Vielleicht würde heutzutage an der südorientierten Stirnfassade oder auf dem Dach noch eine PV-Anlage in Erwägung gezogen werden.

Zwischen Anspruch und Bezahlbarkeit

Den von jeglichem Schnickschnack befreiten Betonbau an der viel befahrenen Reuttier Straße, die in Nord-Süd-Richtung Neu-Ulm durchquert und über die Donau nach Ulm führt, rettet die markante Säulengalerie an den Längsseiten vor dem tiefen Fall in die graue Tristesse. Ohne die auskragenden und auf den Säulen ruhenden Betonplatten für Laubengang und Balkone käme der aus Sandwichplatten gefügte Bau gefährlich nahe an die WBS-70-Plattenoptik ostdeutscher Wohnungsbaukombinate ran. Was zeigt, wie schmal bei Betonbauten dieser Bauart der Grat zwischen Kostenersparnis und identitärer Wohn- und Architekturqualität ist. So massiv der eingesparte Keller das Budget entlastet hat, so sehr fehlt es an Abstellraum für Fahrräder und Mülltonnen.

Weitere Einsparungen während der Bauphase erforderten sowohl von Seiten der NUWOG als auch der Architekten ein sensibles Fingerspitzengefühl, vom besagten schmalen Grat des Anspruchs nicht in die Beliebigkeit abzurutschen. Während der Wegfall des ursprünglich vorgesehenen Badezimmerfensters zum Laubengang noch zu verschmerzen ist, schneiden der Verzicht auf die Fassadenbegrünung und die gemeinschaftlich nutzbare Dachterrasse mit kleinem Spielplatz über den Dächern von Neu-Ulm sowie die sich in Luft aufgelöste Pigmentierung des Betons dem Genius Loci Betoni an diesem unwirtlichen Ort ein gehöriges Stück vom Charmekuchen ab.

Systemoffenheit im Denkprozess

Der Architekt Dietrich Fink indes verteidigt eisern das gemeinsam mit der NUWOG einstudierte Budget-Streichkonzert: „Um die finanziellen Grenzen der Förderrichtlinien trotz hoher Wohnqualität nicht zu überschreiten, haben wir unsere Planung im Laufe der Weiterentwicklung energetisch, materiell und finanziell immer weiter optimiert“, erläutert er die von seinem Büro gewählte Methode zur Effizienzsteigerung des preiswerten Wohnungsbaus. Wichtig sei dabei eine Systemoffenheit im Denkprozess von der Planung über die Ausschreibung bis hin zur Ausführung gewesen. „Deswegen nutzten wir eine system-
offene Ausschreibung im Hinblick auf Materia­lien und Ausführung, die möglichst viele Einsparpotenziale öffnet. Es darf bei der Ausschreibung also nicht heißen: Kommunwand in Ziegelbauweise, sondern Kommunwand, die der DIN 4109 entspricht und glatt ist und so weiter“.

Fakt ist: Die hohen Preise am Bau in Kombination mit den gestiegenen Zinsen erfordern heute mehr denn je gut durchdachte und optimierte Lowtech-Konzepte, um den bezahlbaren (!) Wohnungsbau endlich wieder anzukurbeln. Der Betonbau zu Neu-Ulm zeigt einen möglichen Weg dahin auf.

2 Oberschwäbische Säulenordnung: Der betonpuristische Neubau in der „Alten Stadtgärtnerei“ in Neu-Ulm überzeugt mit klaren Strukturen.

Bild: Michael Heinrich

2 Oberschwäbische Säulenordnung: Der betonpuristische Neubau in der „Alten Stadtgärtnerei“ in Neu-Ulm überzeugt mit klaren Strukturen.
3 Grundriss Dachgeschoss, M 1:300

Bild: Fink+Jocher

3 Grundriss Dachgeschoss, M 1:300
4 Grundriss Regelgeschoss, M 1:300

Bild: Fink+Jocher

4 Grundriss Regelgeschoss, M 1:300
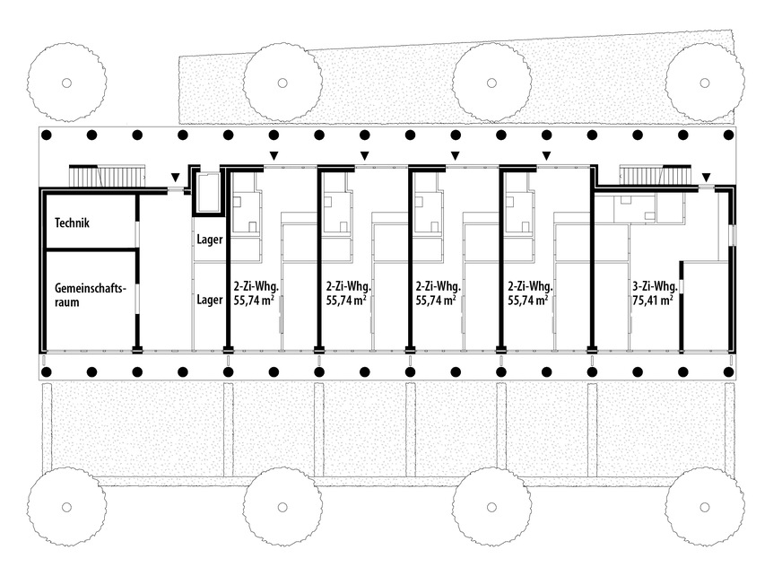
5 Grundriss Erdgeschoss, M 1:300

Bild: Fink+Jocher

5 Grundriss Erdgeschoss, M 1:300
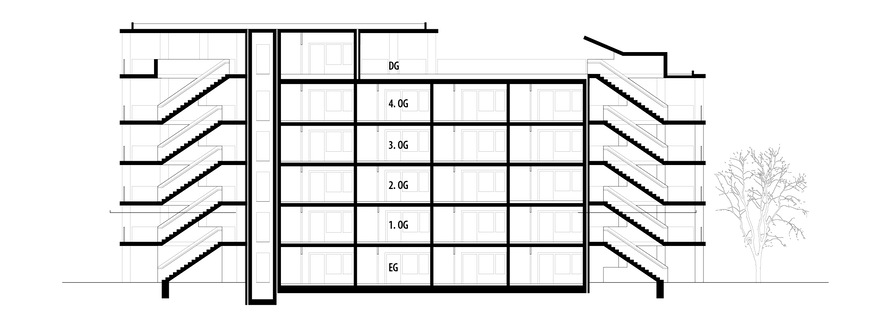
6 Gebäudeschnitt, M 1:300

Bild: Fink+Jocher

6 Gebäudeschnitt, M 1:300
7 Da staunt man Bauklötzchen: Dank vorgefertigter Tragwände, Stützen und Decken ging der Rohbau zügig voran.

Bild: Fink+Jocher

7 Da staunt man Bauklötzchen: Dank vorgefertigter Tragwände, Stützen und Decken ging der Rohbau zügig voran.
8 Drei Grundrisstypen, drei Wohnungsgrößen: Schiebetüren bei den zur Balkonseite orientierten Räumen erlauben individuelle Einrichtungskonzepte.

Bild: Fink+Jocher

8 Drei Grundrisstypen, drei Wohnungsgrößen: Schiebetüren bei den zur Balkonseite orientierten Räumen erlauben individuelle Einrichtungskonzepte.
9 An den schmalen Stirnfassaden ist dem schlichten Betonbau die rigide Sparpolitik der NUWOG anzusehen – etwas Fassadengrün hätte gut getan.

Bild: Michael Heinrich

9 An den schmalen Stirnfassaden ist dem schlichten Betonbau die rigide Sparpolitik der NUWOG anzusehen – etwas Fassadengrün hätte gut getan.
10 Die Erschließung der Wohnungen erfolgt über den Laubengang, die Treppenläufe liegen außerhalb der gedämmten Hülle.

Bild: Michael Heinrich

10 Die Erschließung der Wohnungen erfolgt über den Laubengang, die Treppenläufe liegen außerhalb der gedämmten Hülle.
11 Schema für das Lüftungs-, Klima- und Energiekonzept der Wohnungen

Bild: Transsolar

11 Schema für das Lüftungs-, Klima- und Energiekonzept der Wohnungen
12 + 13 Zaubertrick mit Schiebetüren: Jeder Bewohner kann sich sein Nest so einteilen, wie es ihm am besten gefällt.

Bild: Michael Heinrich

12 + 13 Zaubertrick mit Schiebetüren: Jeder Bewohner kann sich sein Nest so einteilen, wie es ihm am besten gefällt.

Bild: Michael Heinrich

14 Anschlussdetails der Sandwichwand mit einbindender Balkonplatte, M 1:20

Bild: Fink+Jocher

14 Anschlussdetails der Sandwichwand mit einbindender Balkonplatte, M 1:20
15 Detail Fenster-/Türanschluss, Vertikalschnitt, M 1:20

Bild: Fnk+Jocher

15 Detail Fenster-/Türanschluss, Vertikalschnitt, M 1:20

Bautafel

Objekt: Neubau eines Wohnhauses mit 31 öffentlich geförderten Wohnungen in Neu-Ulm

Bauherr: NUWOG Wohnungsgesellschaft der Stadt Neu-Ulm GmbH

Architektur (Lph. 1-5): Fink+Jocher, 80799 München, www.fink-jocher.de, Gesellschaft von Architekten und Stadtplanern mbH

Architektur (Lph. 6-9): Architekturbüro Roberto Carnevale, 89077 Ulm, www.architektur-ulm.de

Landschaftsarchitektur: terra.nova Landschaftsarchitektur, Dipl. Ing. Peter Wich, 81543 München, https://tn-l.de

Klimaengineering: Transsolar Energietechnik GmbH, 80336 München, www.transsolar.com/de

Tragwerksplanung: Röder Ingenieure, Ingenieurbüro für Bauwesen, 89231 Neu-Ulm, www.roeder-ingenieure.de

HLS, Elektroplanung: Rennert Ingenieuratelier GmbH, 96052 Bamberg, www.www.rennert-ingenieure.de

Fotografie: Michael Heinrich Fotografie für Architekten, 81671 München, www.mhfa.de

Gebäude- und Energiekenndaten

Brutto-Grundfläche: 3.670 m2

Baukosten: 6,88 Mio. € (KG 100-700)

Planung / Bauausführung: 6/2016 – 10/2018 und 10/2018 – 08/2020

Energiekenndaten auf Basis der thermischen Gebäudesimulation:

spez. Primärenergiebedarf Gebäude Heizung + Strom: 13 kWh/(m2a)

spez. Primärenergiebedarf inkl. Nutzerstrom: 44 kWh/(m2a)

spez. Jahresnutzenergiebedarf Heizung + WW: 47 kWh/(m2a)

spez. Jahresnutzenergiebedarf Elektrizität: 22 kWh/(m2a)

angesetzte Primärenergiefaktoren:

  • Fernwärme 0,08
  • Strom 1,8
  • Fensteranteile:

  • Fassade Südwest 80 %
  • Fassade Nordost 40 % bzw. 25 %
  • U-Werte:

  • Dach: 0,11 W/(m2K)
  • Außenwand: 0,13 W/(m2K)
  • Boden zu Erdreich: 0,15 W/(m2K)
  • Verglasung UW: 0,8 W/(m2K) (­Rahmenanteil 20 %)
  • Wärmebrückenzuschlag: 0,027 W/(m2K)

    Luftwechselansatz n50: 0,05-1

    Jetzt weiterlesen und profitieren.

    Mit unserer Future Watt Firmenlizenz top informiert und immer auf dem neuesten Wissenstand in ihrem Fachgebiet.

    + Unbegrenzter Zugang zu allen Future Watt Inhalten
    + Vergünstigte Webinarteilnahme
    + E-Paper Ausgaben
    + Sonderhefte zu speziellen Themen
    + uvm.

    Wir haben die passende Lizenz für Ihre Unternehmensgröße!

    Mehr erfahren

    Tags